
Location studio photo et video
Au coeur de Lyon, Cyclorama Studio est un espace modulable, adapté à la production photo et vidéo, conçu pour vous donner une totale liberté de création.
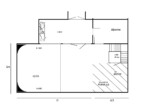
Cyclorama Studio : 150 m2 d’espace modulable au coeur de Lyon
Le meilleur studio pour réaliser vos vidéos et shooting photos
Situé au rez-de-chaussée d’une ancienne imprimerie du quartier de la Guillotière, le lieu a été entièrement pensé et rénové pour vous accueillir dans un cadre de travail agréable et lumineux : espace shooting de 60 m², loge, cuisine, terrasse extérieure et atelier de façonnage équipé pour la confection de décors.
Et pour vous accompagner, nous vous proposons un réseau d’experts pour tous types de shooting ainsi que de la location matériel photo et vidéo.
Pour plus d’info et réserver un créneau, rendez-vous sur https://www.cyclorama.fr
SHOOTING
UN PLATEAU
DE 60M²
PRÉPARATION
UN ESPACE
DÉDIÉ À LA
CONFECTION
DE DÉCORS
FOND CYCLO
UNE PAGE
BLANCHE
DE 90M³
AUSSI...
UNE LOGE
DE 25 M²
Plus d'info sur cyclorama.fr !
![]()













